logo plan

BLOHM PLAN BUNGALOWS

Ein Bungalow für alle Fälle

Längst hat der Bungalowstil sein verstaubtes 60er-Jahre-Image hinter sich gelassen und bietet alle Annehmlichkeiten auf einer Ebene. Ob als Winkelbungalow, mit überdachter Terrasse für ein "grünes" Wohnzimmer im Sommer, Ferienhaus oder barrierefreies und behindertengerechtes Haus - ein Bungalow erfüllt die Ansprüche von allen Generationen oder betroffenen Menschen mit Handicap.


Lassen Sie sich von unseren zahlreichen Grundrissen inspirieren und im Anschluss professionell durch uns beraten.

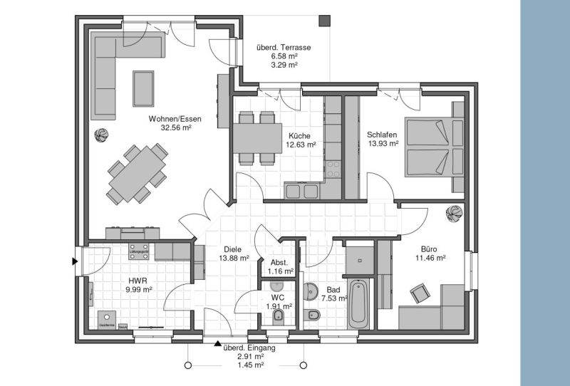
PLAN 110

Winkelbungalow

Einfamilienhaus

  • Wohnfläche: ca. 110 qm
  • Außenmaße: 8,74 x 13,49 m
  • Winkel: 2,25 x 8,74 m
  • Dachneigung: 35°

Alles inklusive:

  • Effizienzhaus
  • Modernste Heiztechnik
  • Kontrollierte Be- und Entlüftung
  • Fußbodenheizung
  • 3-fach Wärmeschutzverglasung
  • Hoch gedämmte energetische Gebäudehülle in Massivbauweise
  • Niedriger Energieverbrauch
  • Gesundes Raumklima

Grundriss Erdgeschoss

Wohnen/Essen: 32,56 qm
Küche: 12,63 qm
Büro: 11,46 qm
Schlafen: 13,93 qm
HWR: 9,99 qm
WC: 1,91 qm
Bad: 7,53 qm
Abst: 1,16 qm
Diele: 13,88 qm
überd. Terrasse: 3,29 qm
überd. Eingang:  1,45 qm

Wohnfläche: 109,79 qm

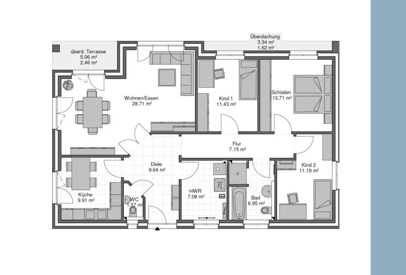
PLAN 112

Bungalow

Einfamilienhaus

  • Wohnfläche: ca. 112 qm
  • Außenmaße: 9,74 x 14,99 m
  • Dachneigung: 33°

Alles inklusive:

  • Effizienzhaus
  • Modernste Heiztechnik
  • Kontrollierte Be- und Entlüftung
  • Fußbodenheizung
  • 3-fach Wärmeschutzverglasung
  • Hoch gedämmte energetische Gebäudehülle in Massivbauweise
  • Niedriger Energieverbrauch
  • Gesundes Raumklima

Grundriss Erdgeschoss

Wohnen/Essen: 28,71 qm
Küche: 9,91 qm
Diele: 9,64 qm
WC: 1,57 qm
HWR: 7,08 qm
Flur: 7,15 qm
Bad: 6,95 qm
Schlafen:  13,71 qm
Kind 1: 11,43 qm
Kind 2: 11,19 qm
überd. Terrasse: 3,34/2,46 qm

Wohnfläche: 112 qm

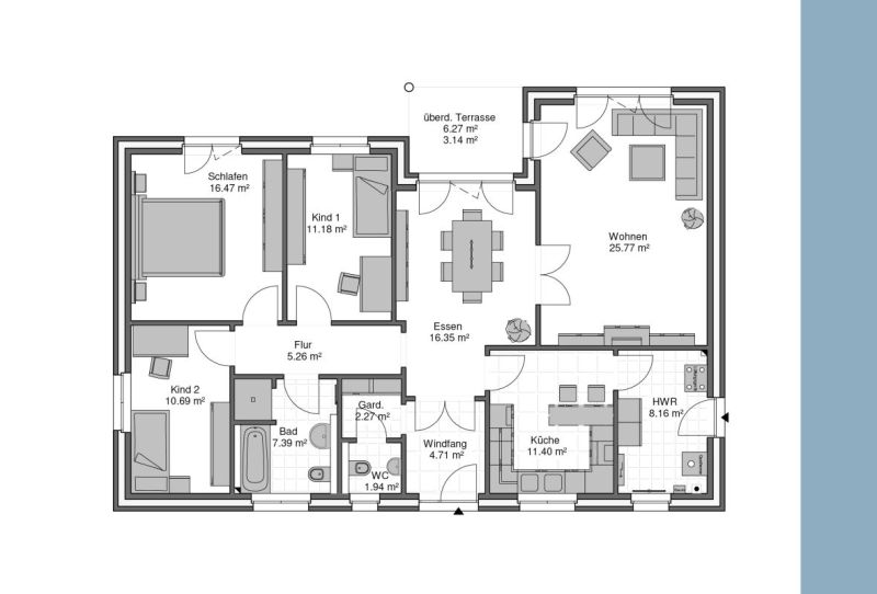
PLAN 125

Winkelbungalow

Landhaus mit 130 qm

  • Wohnfläche: ca. 125 qm
  • Außenmaße: 10,74 x 15,49 m
  • Winkel: 1,25 x 8,00 m
  • Dachneigung: 34°

Alles inklusive:

  • Effizienzhaus
  • Modernste Heiztechnik
  • Kontrollierte Be- und Entlüftung
  • Fußbodenheizung
  • 3-fach Wärmeschutzverglasung
  • Hoch gedämmte energetische Gebäudehülle in Massivbauweise
  • Niedriger Energieverbrauch
  • Gesundes Raumklima

Grundriss Erdgeschoss

Wohnen: 25,77 qm
Essen: 16,35 qm
Küche: 11,40 qm
HWR: 8,16 qm
WC: 1,94 qm
WF: 4,71 qm
Gard:  2,27 qm
Bad: 7,39 qm
Flur: 5,26 qm
Kind 1: 11,18 qm
Kind 2: 10,69 qm
Schlafen: 16,47 qm
überd. Terrasse: 3,14 qm

Wohnfläche: 124,73 qm

Grundriss Erdgeschoss Alternative mit Dachgeschoss

Kind 1: 13,05 qm

Kind 2: 13,18 qm

Schlafen: 11,74 qm

Ankleide: 5,08 qm

Bad: 8,13 qm

Flur: 7,21 qm

Wohnfläche: 58,39 qm

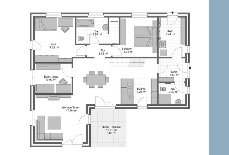
PLAN 131

Winkelbungalow

Landhaus mit 138 qm

  • Wohnfläche: ca. 132 qm
    Außenmaße: 9,115 x 15,115 m
    Winkel: 3,625 x 9,115 m
    Dachneigung: 35°

Alles inklusive:

  • Effizienzhaus
  • Modernste Heiztechnik
  • Kontrollierte Be- und Entlüftung
  • Fußbodenheizung
  • 3-fach Wärmeschutzverglasung
  • Hoch gedämmte energetische Gebäudehülle in Massivbauweise
  • Niedriger Energieverbrauch
  • Gesundes Raumklima

Grundriss Erdgeschoss

Wohnen/Essen: 47,16 qm
Küche: 8,25 qm
Diele: 5,58 qm
WC: 5,05 qm
HWR: 9,44 qm
Flur: 2,62 qm
Bad: 9,99 qm
Schlafen:  14,04 qm
Kind: 17,22 qm
Büro/Gast: 10,00 qm
überd. Terrasse: 3,05 qm

Wohnfläche: 132 qm

PLAN 132

Winkelbungalow

Einfamilienhaus

  • Wohnfläche: ca. 132 qm
  • Außenmaße: 8,99 x 13,615 m
  • Winkel: 4,62 x 8,99 m
  • Dachneigung: 32°

Alles inklusive:

  • Effizienzhaus
  • Modernste Heiztechnik
  • Kontrollierte Be- und Entlüftung
  • Fußbodenheizung
  • 3-fach Wärmeschutzverglasung
  • Hoch gedämmte energetische Gebäudehülle in Massivbauweise
  • Niedriger Energieverbrauch
  • Gesundes Raumklima

Grundriss Erdgeschoss

Wohnen: 37,40 qm
Küche: 9,01 qm
Diele: 12,90 qm
Flur: 4,89 qm
Schlafen: 14,94 qm
Kind:  11,97 qm
Büro: 10,26 qm
WC/Du: 4,29 qm
Bad: 9,04 qm
HWR: 10,47 qm
überd. Terrasse: 6,43 qm
überd. Eingang: 0,66 qm

Wohnfläche: 127,97 qm

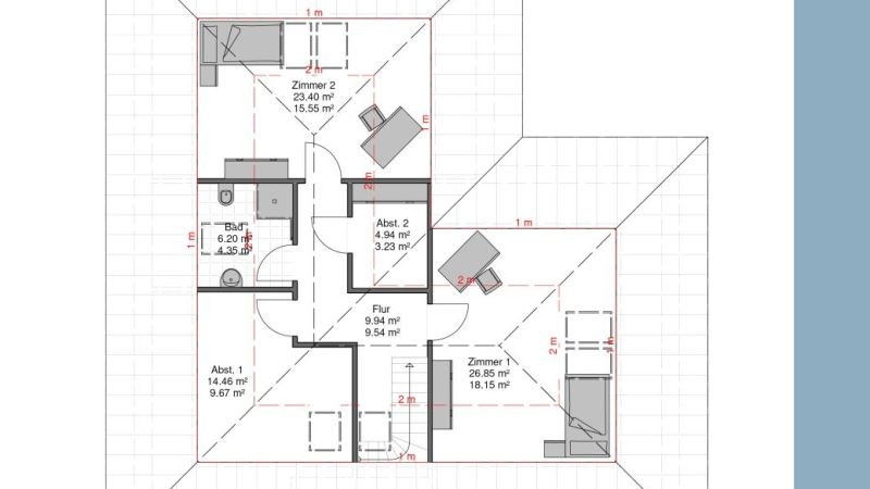
Grundriss Erdgeschoss Alternative mit Dachgeschoss

Zimmer 1: 18,15 qm
Zimmer 2: 15,55 qm
Abst. 1: 9,67 qm
Abst. 2: 3,23 qm
Bad: 4,35 qm
Flur: 9,54 qm

Wohnfläche DG: 60,49 qm

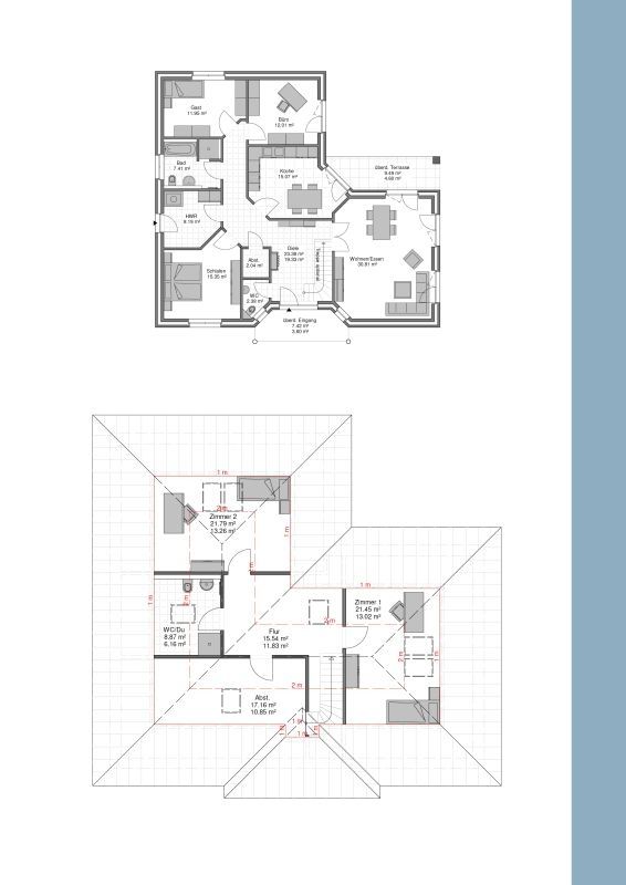
PLAN 133

Winkelbungalow

Einfamilienhaus

  • Wohnfläche: ca. 133 qm
  • Außenmaße: 8,99 x 14,99 m
  • Winkel: 4,50 x 8,99 m
  • Dachneigung: 35°

Alles inklusive:

  • Effizienzhaus
  • Modernste Heiztechnik
  • Kontrollierte Be- und Entlüftung
  • Fußbodenheizung
  • 3-fach Wärmeschutzverglasung
  • Hoch gedämmte energetische Gebäudehülle in Massivbauweise
  • Niedriger Energieverbrauch
  • Gesundes Raumklima

Grundriss Erdgeschoss

Wohnen: 30,81 qm
Küche: 14,29 qm
Diele: 19,22 qm
Schlafen: 14,77 qm
Gast:  11,99 qm
Büro: 13,26 qm
WC: 2,42 qm
Abst: 1,90 qm
Bad: 7,89 qm
HWR: 8,25 qm
überd. Terrasse: 4,60 qm
überd. Eingang: 3,60 qm

Wohnfläche: 133,00 qm

Grundriss Dachgeschoss

Das Dachgeschoss bietet eine Nutzfläche von 145,31 qm

Grundriss Alternative mit ausgebautem Dachgeschoss

Kind 1: 14,75 qm
Kind 2: 14,75 qm
WC/Du: 5,35 qm
Schlafen: 10,19 qm
Ankleide: 8,32 qm
Bad:  8,79 qm
Flur: 8,48 qm

Wohnfläche: 70,63 qm

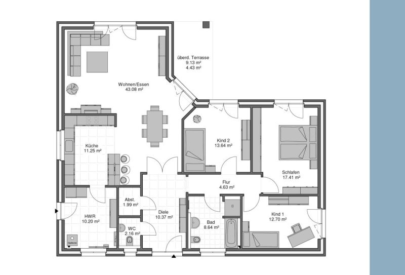
Blohm PLAN 140

Winkelbungalow

Einfamilienhaus

  • Wohnfläche: ca. 140 qm
  • Außenmaße: 8,99 x 15,49 m
  • Winkel: 4,50 x 8,99 m
  • Dachneigung: 35°

Alles inklusive:

  • Effizienzhaus
  • Modernste Heiztechnik
  • Kontrollierte Be- und Entlüftung
  • Fußbodenheizung
  • 3-fach Wärmeschutzverglasung
  • Hoch gedämmte energetische Gebäudehülle in Massivbauweise
  • Niedriger Energieverbrauch
  • Gesundes Raumklima

Grundriss Erdgeschoss

Wohnen: 43,08 qm
Küche: 11,25 qm
HWR: 10,20 qm
Abst: 1,99 qm
WC:  2,16 qm
Diele: 10,37 qm
Flur: 4,63 qm
Bad: 8,64 qm
Schlafen: 17,41 qm
Kind 1: 12,70 qm
Kind 2: 13,64 qm
überd. Terrasse: 4,43 qm

Wohnfläche: 140,50 qm