logo duo

BLOHM DUO Doppelhäuser

Das nachhaltige Doppelhaus

Generationenwohnen, Bauen mit Geschwistern oder Freunden, für Vermietungszwecke zur Altersvorsorge - ein Doppelhaus bietet viel Spielraum für Zukunftspläne. Im Doppelpack bauen spart zudem Baukosten, da viele Schritte in einer gemeinsamen Abwicklung geregelt werden können.


Hier finden Sie eine Übersicht an durchdachten und ansprechenden Doppelhäusern.

DUO 104

Doppelhaus

Doppelhaus

  • Wohnfl. je Haushälfte: ca. 104 qm
  • Außenmaße: 9,99 x 14,99 m
  • Dachneigung: 43°
  • Kniestock: 75 cm

Alles inklusive:

  • Effizienzhaus
  • Modernste Heiztechnik
  • Kontrollierte Be- und Entlüftung
  • Fußbodenheizung
  • 3-fach Wärmeschutzverglasung
  • Hoch gedämmte energetische Gebäudehülle in Massivbauweise
  • Niedriger Energieverbrauch
  • Gesundes Raumklima

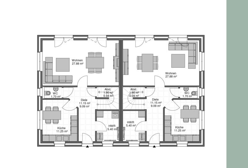
Grundriss Erdgeschoss

Wohnen: 27,88 qm
WC: 1,70 qm
Diele: 9,09 qm
HWR: 5,40 qm
Küche: 11,25 qm
Abst.: 0,04 qm

Wohnfläche: 55,36 qm

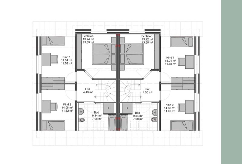
Grundriss Dachgeschoss

Schlafen: 13,59 qm
Flur: 4,49 qm
Kind 1: 11,58 qm
Kind 2: 11,62 qm
Bad: 7,08 qm

Wohnfläche: 48,36 qm

DUO 112

Doppelhaus

Doppelhaus

  • Wohnfl. je Haushälfte: ca. 112 qm
  • Außenmaße: 10,49 x 13,74 m
  • Dachneigung: 43°
  • Kniestock: 75 cm

Alles inklusive:

  • Effizienzhaus
  • Modernste Heiztechnik
  • Kontrollierte Be- und Entlüftung
  • Fußbodenheizung
  • 3-fach Wärmeschutzverglasung
  • Hoch gedämmte energetische Gebäudehülle in Massivbauweise
  • Niedriger Energieverbrauch
  • Gesundes Raumklima

Grundriss Erdgeschoss

Wohnen: 25,13 qm
WC: 1,67 qm
Diele: 10,68 qm
HWR: 7,07 qm
Küche: 11,21 qm
Abst.: 2,78 qm

Wohnfläche: 60,24 qm

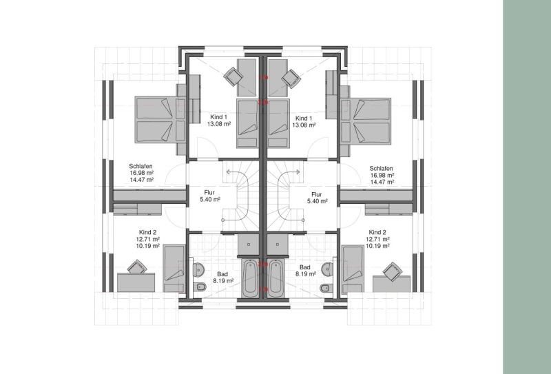
Grundriss Dachgeschoss

Schlafen: 14,47 qm
Flur: 5,40 qm
Kind 1: 13,08 qm
Kind 2: 10,19 qm
Bad: 8,19 qm

Wohnfläche: 51,33 qm

DUO 113

Doppelhaus

Doppelhaus

  • Wohnfl. je Haushälfte: ca. 113 qm
  • Außenmaße:10,49 x 14,99 m
  • Dachneigung: 43°
  • Kniestock: 75 cm

Alles inklusive:

  • Effizienzhaus
  • Modernste Heiztechnik
  • Kontrollierte Be- und Entlüftung
  • Fußbodenheizung
  • 3-fach Wärmeschutzverglasung
  • Hoch gedämmte energetische Gebäudehülle in Massivbauweise
  • Niedriger Energieverbrauch
  • Gesundes Raumklima

Grundriss Erdgeschoss

Wohnen: 28,73 qm
WC: 1,91 qm
Diele: 10,63 qm
HWR: 6,20 qm
Küche: 11,24 qm
Abst.: 0,00 qm

Wohnfläche: 58,73 qm

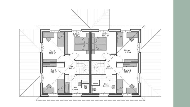
Grundriss Dachgeschoss

Schlafen: 13,60 qm
Kind 1: 12,38 qm
Kind 2: 12,40 qm
Flur: 4,93 qm
Bad: 10,85 qm

Wohnfläche: 54,15 qm

DUO 130

Doppelhaus

Doppelhaus

  • Wohnfl. je Haushälfte: ca. 125 qm
  • Außenmaße: 12,24 x 13,74 m
  • Dachneigung: 39°
  • Kniestock: 75 cm

Alles inklusive:

  • Effizienzhaus
  • Modernste Heiztechnik
  • Kontrollierte Be- und Entlüftung
  • Fußbodenheizung
  • 3-fach Wärmeschutzverglasung
  • Hoch gedämmte energetische Gebäudehülle in Massivbauweise
  • Niedriger Energieverbrauch
  • Gesundes Raumklima

Grundriss Erdgeschoss

Wohnen: 31,76 qm
WC/Du.: 3,99 qm
Diele: 8,38 qm
HWR: 7,75 qm
Küche: 11,53 qm
Gast: 11,76 qm

Wohnfläche: 59,34 qm

Grundriss Dachgeschoss

Wohnen: 31,76 qm
WC/Du.: 3,99 qm
Diele: 8,38 qm
HWR: 7,75 qm
Küche: 11,53 qm
Gast: 11,76 qm

Wohnfläche: 59,34 qm