logo art

BLOHM ART DESIGNHÄUSER

Designhäuser mit dem gewissen Extra

Wer außergewöhnliche Architektur mag und sein designbewusstes Leben auch mit seinen eigenen vier Wänden verwirklichen will, findet in unserer Art-Serie das passende Konzept. Sie sind modern, innovativ und alles andere als gewöhnlich.


Lassen Sie sich durch unsere zahlreichen Designs und Grundrissen inspirieren. Gemeinsam realisieren wir Ihren Traum vom Designhaus.

ART 139

Stadtvilla mit fast 140 qm Grundriss

Stadtvilla

  • Wohnfläche: ca. 139,5 qm
  • Außenmaße: 8,74 x 9,24 m
  • Anbaumaße: 3,00 x 3,74 m / 1,50 x 5,50 m

Alles inklusive:

  • Effizienzhaus
  • Modernste Heiztechnik
  • Kontrollierte Be- und Entlüftung
  • Fußbodenheizung
  • 3-fach Wärmeschutzverglasung
  • Hoch gedämmte energetische Gebäudehülle in Massivbauweise
  • Niedriger Energieverbrauch
  • Gesundes Raumklima

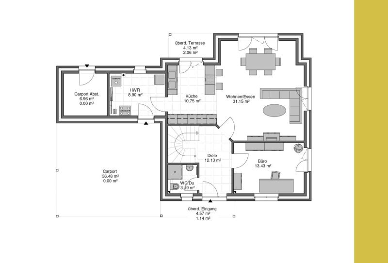
Grundriss Erdgeschoss

Wohnen: 31,15 qm
Küche: 10,75 qm
Büro: 13,43 qm
WC/Du: 3,19 qm
HWR: 8,90 qm
Diele: 12,13 qm
Terrasse: 2,06

Wohnfläche: 81,61 qm

Grundriss Dachgeschoss

Schlafen: 14,13 qm
Kind 1: 14,05 qm
Kind 2: 14,33 qm
Bad: 10,76 qm
Flur: 5,72 qm 

Wohnfläche: 58,99 qm

ART 146

Einfamilienhaus mit über 145 qm

Einfamilienhaus

  • Wohnfläche: ca. 146 qm
  • Außenmaße 8,49 x 11,49 m
  • Dachneigung: 45°
  • Kniestock: 100 cm

Alles inklusive:

  • Effizienzhaus
  • Modernste Heiztechnik
  • Kontrollierte Be- und Entlüftung
  • Fußbodenheizung
  • 3-fach Wärmeschutzverglasung
  • Hoch gedämmte energetische Gebäudehülle in Massivbauweise
  • Niedriger Energieverbrauch
  • Gesundes Raumklima

Grundriss Erdgeschoss

Wohnen/Essen: 32,77 qm
Küche: 10,20 qm
WC/DU: 3,78 qm
HWR: 9,98 qm
Diele: 13,89 qm
Büro: 10,41 qm

Wohnfläche: 81,03 qm

Grundriss Dachgeschoss

Kind 1: 13,46 qm
Kind 2: 13,46 qm
Schlafen: 15,31 qm
Ankleide: 5,95 qm
Bad: 13,35 qm
Flur: 5,78 qm

Wohnfläche: 67,36 qm

ART 154

Das Pultdachhaus

Pultdach

  • Wohnfläche: ca. 153 qm
  • Außenmaße: 8,99 x 11,49 m
  • Dachneigung: 38°/42°
  • Kniestock: 127/114 cm

Alles inklusive:

  • Effizienzhaus
  • Modernste Heiztechnik
  • Kontrollierte Be- und Entlüftung
  • Fußbodenheizung
  • 3-fach Wärmeschutzverglasung
  • Hoch gedämmte energetische Gebäudehülle in Massivbauweise
  • Niedriger Energieverbrauch
  • Gesundes Raumklima

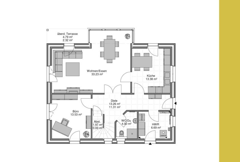
Grundriss Erdgeschoss

Wohnen/Essen: 33,23 qm
Küche: 13,38 qm
Büro: 13,53 qm
WC/Du: 4,00 qm
Abst: 1,97 qm
Diele: 11,31 qm
HWR: 6,69 qm
überd. Terrasse: 2,32 qm

Wohnfläche: 84,46 qm

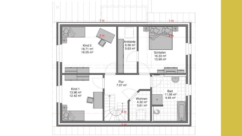
Grundriss Dachgeschoss

Kind 1: 12,34 qm
Kind 2: 15,93 qm
Schlafen: 13,88 qm
Ankleide: 5,58 qm
Bad: 9,71 qm
Abstellraum: 3,57 qm
Flur: 6,74 qm

Wohnfläche: 67,76 qm

Grundriss Erdgeschoss Alternative

Grundriss Dachgeschoss Alternative

ART 155

Mediterrane Stadtvilla

Stadtvilla mit über 150qm

  • Wohnfläche: ca. 155 qm
  • Außenmaße 10,49 x 10,49 m
  • Dachneigung: 22°

Alles inklusive:

  • Effizienzhaus
  • Modernste Heiztechnik
  • Kontrollierte Be- und Entlüftung
  • Fußbodenheizung
  • 3-fach Wärmeschutzverglasung
  • Hoch gedämmte energetische Gebäudehülle in Massivbauweise
  • Niedriger Energieverbrauch
  • Gesundes Raumklima

Grundriss Erdgeschoss

Wohnen/Essen: 30,76 qm
Küche: 13,23 qm
WC: 2,28 qm
HWR: 13,44 qm
Diele: 14,29 qm
Büro: 10,30 qm
überd. Eingang: 1,81 qm

Wohnfläche: 90,74 qm

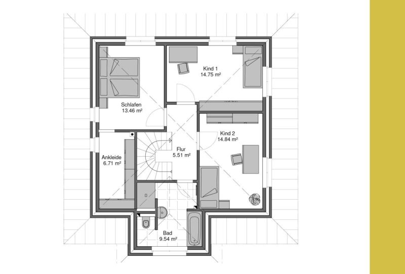
Grundriss Dachgeschoss

Kind 1: 14,75 qm
Kind 2: 14,84 qm
Schlafen: 13,46 qm
Ankleide: 6,71 qm
Bad: 9,54 qm
Flur: 5,51 qm

Wohnfläche: 64,81 qm

Art 155 EGb

Grundriss Erdgeschoss Alternative

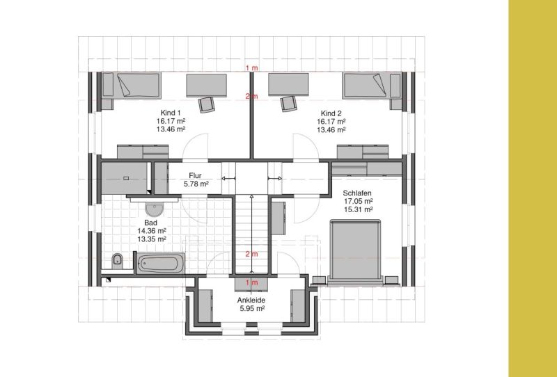
Art 155 DGb

Grundriss Dachgeschoss Alternative

ART 156

Mediterrane Stadtvilla

Stadtvilla

  • Wohnfläche: ca. 155 qm
  • Außenmaße: 10,99 x 10,99 m
  • Dachneigung: 24°, 1 geschossig
  • Überdachung und Balkon: 36 qm

Alles inklusive:

  • Effizienzhaus
  • Modernste Heiztechnik
  • Kontrollierte Be- und Entlüftung
  • Fußbodenheizung
  • 3-fach Wärmeschutzverglasung
  • Hoch gedämmte energetische Gebäudehülle in Massivbauweise
  • Niedriger Energieverbrauch
  • Gesundes Raumklima

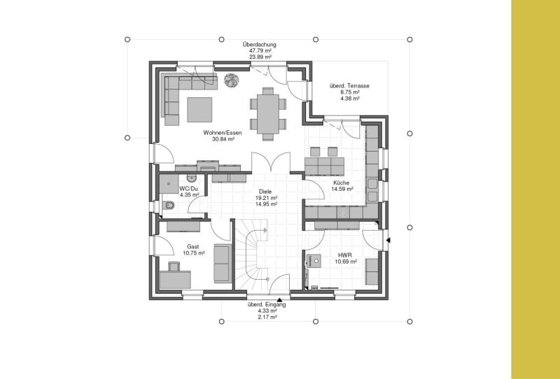
Grundriss Erdgeschoss

Wohnen/Essen: 30,84 qm
Küche: 14,59 qm
WC/DU: 4,35 qm
HWR: 10,69 qm
Diele: 14,95 qm
Gast: 10,75 qm
Überdachungen: 23,89 qm
überd. Terrasse: 4,38 qm

Wohnfläche: 86,17 qm

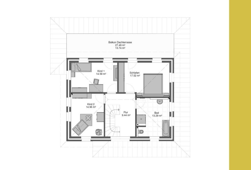
Grundriss Dachgeschoss

Kind 1: 14,59 qm
Kind 2: 14,96 qm
Schlafen: 17,52 qm
Bad: 13,29 qm
Flur: 9,44 qm
Balkon/Dachterrasse: 13,74 qm

Wohnfläche: 69,80 qm

ART 177

Einfamilienhaus

Einfamilienhaus

  • Wohnfläche: ca. 177 qm
  • Außenmaße: 9,49 x 11,99 m
  • Dachneigung: 30°, 2 geschossig

Alles inklusive:

  • Effizienzhaus
  • Modernste Heiztechnik
  • Kontrollierte Be- und Entlüftung
  • Fußbodenheizung
  • 3-fach Wärmeschutzverglasung
  • Hoch gedämmte energetische Gebäudehülle in Massivbauweise
  • Niedriger Energieverbrauch
  • Gesundes Raumklima

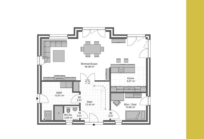
Grundriss Erdgeschoss

Wohnen/Essen: 46,08 qm
Küche: 9,67 qm
WC/DU: 3,89 qm
HWR: 10,97 qm
Diele: 13,43 qm
Büro/Gast: 10,85 qm

Wohnfläche: 94,89 qm

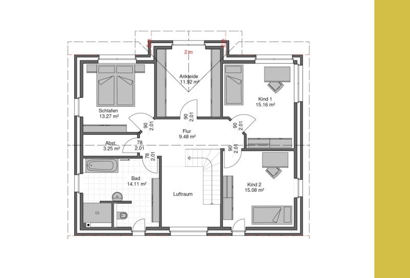
Grundriss Dachgeschoss

Kind 1: 15,16 qm
Kind 2: 15,08 qm
Schlafen: 13,27 qm
Bad: 14,11 qm
Flur: 9,48 qm

Wohnfläche: 82,27 qm