logo fam

BLOHM FAM EINFAMILIENHÄUSER

Das Einfamilienhaus, so bunt wie das Familienleben

Unsere Familienhäuser FAM sind maßgeschneidert für junge Familien oder solche, die es werden wollen. Die Häuser bieten viel Platz für ein gemeinsames Familienleben und gleichzeitig genug Rückzugsmöglichkeiten für jeden.


Wählen Sie aus einer großen Auswahl von unterschiedlichen Häusern und Grundrissen. Kleinere Anpassungen an Haus und Grundriss sind natürlich möglich. Sprechen Sie uns an, wir beraten Sie gerne.

FAM 122

Einfamilienhaus als Landhaus

Einfamilienhaus

  • Wohnfläche: ca. 122 qm
  • Außenmaße: 8,24 x 10,24 m
  • Dachneigung: 45°
  • Kniestock: 125 cm

Alles inklusive:

  • Effizienzhaus
  • Modernste Heiztechnik
  • Kontrollierte Be- und Entlüftung
  • Fußbodenheizung
  • 3-fach Wärmeschutzverglasung
  • Hoch gedämmte energetische Gebäudehülle in Massivbauweise
  • Niedriger Energieverbrauch
  • Gesundes Raumklima

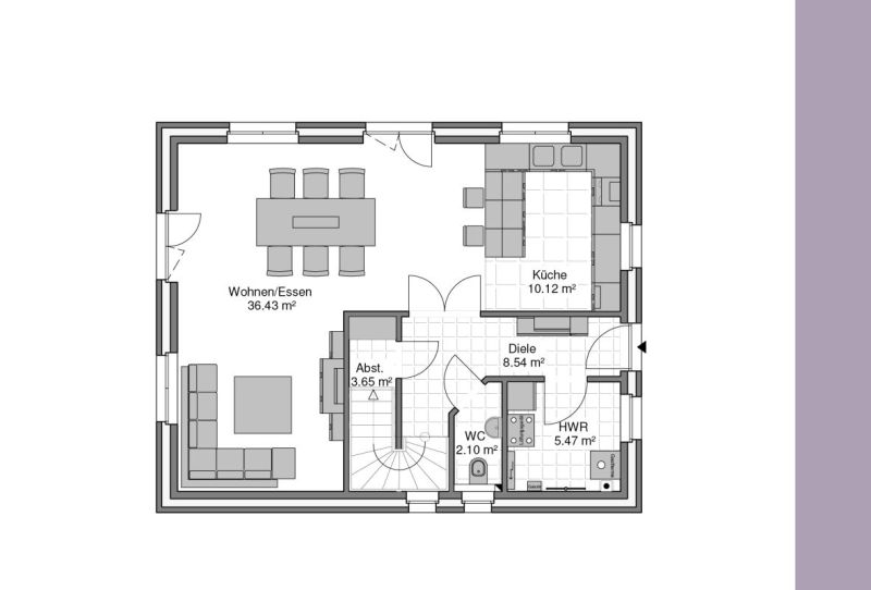
Grundriss Erdgeschoss

Wohnen: 36,43 qm

Küche: 10,12 qm

WC: 2,10 qm

HWR: 5,47 qm

Diele: 8,54 qm

Wohnfläche: 66,31 qm

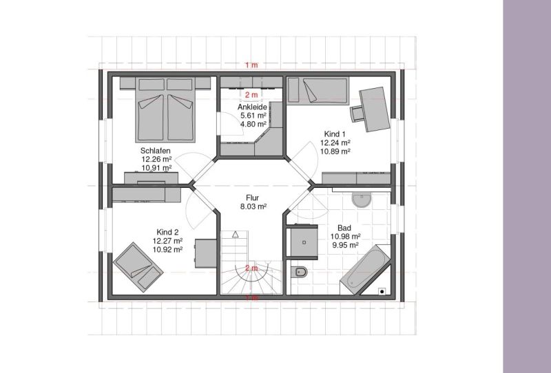
Grundriss Dachgeschoss

Kind 1: 10,89 qm

Kind 2: 10,92 qm

Schlafen: 10,91 qm

Ankleide: 4,80 qm

Bad: 9,95 qm

Flur: 8,03 qm

Wohnfläche: 55,50 qm

FAM 124

Einfamilienhaus als Landhaus

Einfamilienhaus

  • Wohnfläche: ca. 124 qm
  • Außenmaße: 8,99 x 9,99 m
  • Dachneigung: 45°
  • Kniestock: 100 cm

Alles inklusive:

  • Effizienzhaus
  • Modernste Heiztechnik
  • Kontrollierte Be- und Entlüftung
  • Fußbodenheizung
  • 3-fach Wärmeschutzverglasung
  • Hoch gedämmte energetische Gebäudehülle in Massivbauweise
  • Niedriger Energieverbrauch
  • Gesundes Raumklima

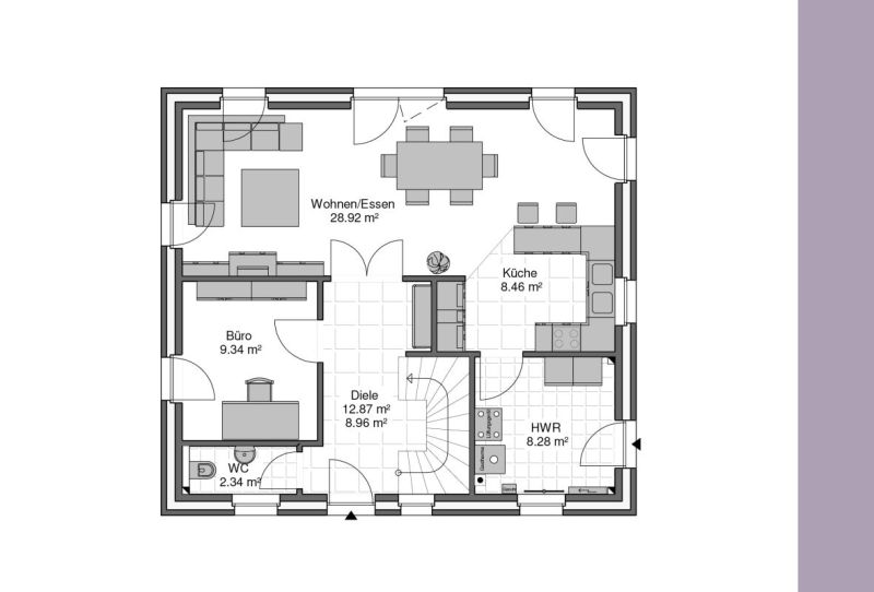
Grundriss Erdgeschoss

Wohnen: 28,92 qm

Küche: 8,46 qm

WC: 2,34 qm

HWR: 8,28 qm

Diele: 8,96 qm

Büro: 9334 qm

Wohnfläche: 66,30 qm

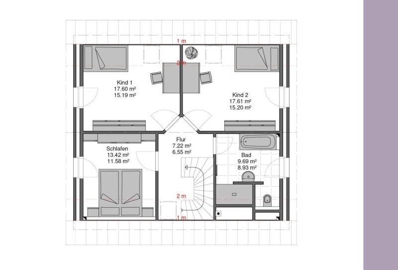
Grundriss Dachgeschoss

Kind 1: 15,19 qm

Kind 2: 15,20 qm

Schlafen: 11,58 qm

Bad: 8,93 qm

Flur: 6,55 qm

Wohnfläche: 57,45 qm

FAM 129

Einfamilienhaus als Landhaus

Einfamilienhaus

  • Wohnfläche: ca. 129 qm
  • Außenmaße: 8,49 x 10,49 m
  • Dachneigung: 46°
  • Kniestock: 100 cm

Alles inklusive:

  • Effizienzhaus
  • Modernste Heiztechnik
  • Kontrollierte Be- und Entlüftung
  • Fußbodenheizung
  • 3-fach Wärmeschutzverglasung
  • Hoch gedämmte energetische Gebäudehülle in Massivbauweise
  • Niedriger Energieverbrauch
  • Gesundes Raumklima

Grundriss Erdgeschoss

Wohnen: 46,62 qm

Küche: 8,56 qm

WC: 1,69 qm

HWR: 8,69 qm

Diele: 7,00 qm

Wohnfläche: 72,56 qm

Grundriss Erdgeschoss als Variante ohne Wintergarten

Grundriss Dachgeschoss

Kind 1: 14,64 qm

Kind 2: 11,76 qm

Schlafen: 15,21 qm

Bad: 10,37 qm

Flur: 5,06 qm

Wohnfläche: 57,04 qm

Grundriss Dachgeschoss als Variante ohne Wintergarten

FAM 130

Einfamilienhaus als Landhaus

Landhaus mit 130 qm

  • Wohnfläche: ca. 130 qm
  • Außenmaße: 8,24 x 10,74 m
  • Dachneigung: 35°
  • Kniestock: 150 cm

Alles inklusive:

  • Effizienzhaus
  • Modernste Heiztechnik
  • Kontrollierte Be- und Entlüftung
  • Fußbodenheizung
  • 3-fach Wärmeschutzverglasung
  • Hoch gedämmte energetische Gebäudehülle in Massivbauweise
  • Niedriger Energieverbrauch
  • Gesundes Raumklima

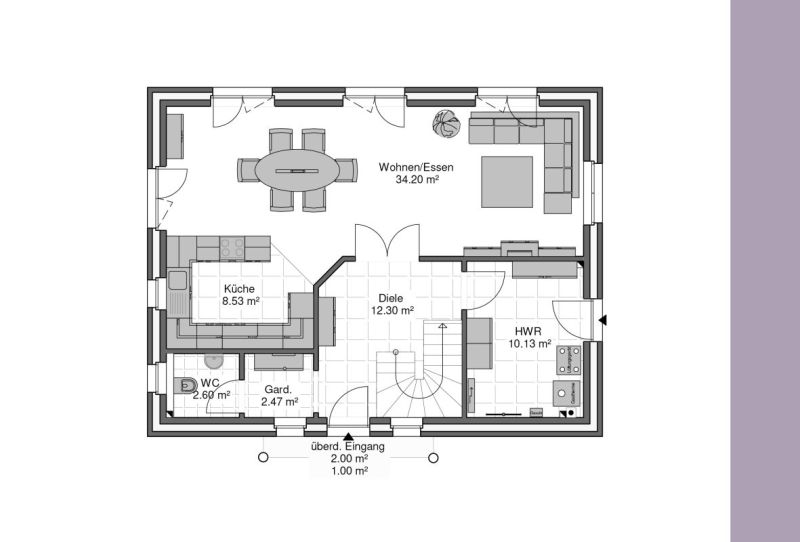
Grundriss Erdgeschoss

Wohnen/Essen: 34,20 qm

Küche: 8,53 qm

WC: 2,60 qm

HWR: 10,13 qm

Diele: 12,30 qm

Wohnfläche: 70,23 qm

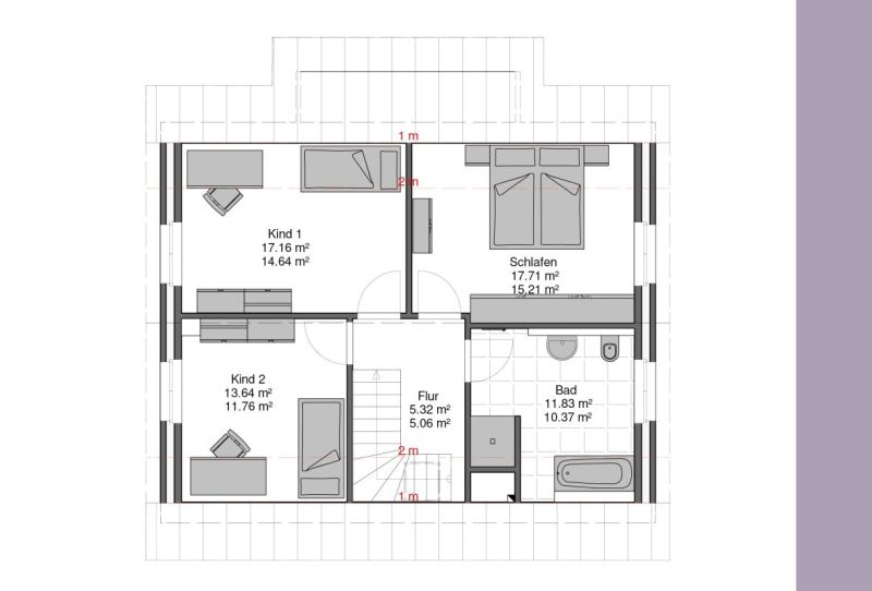
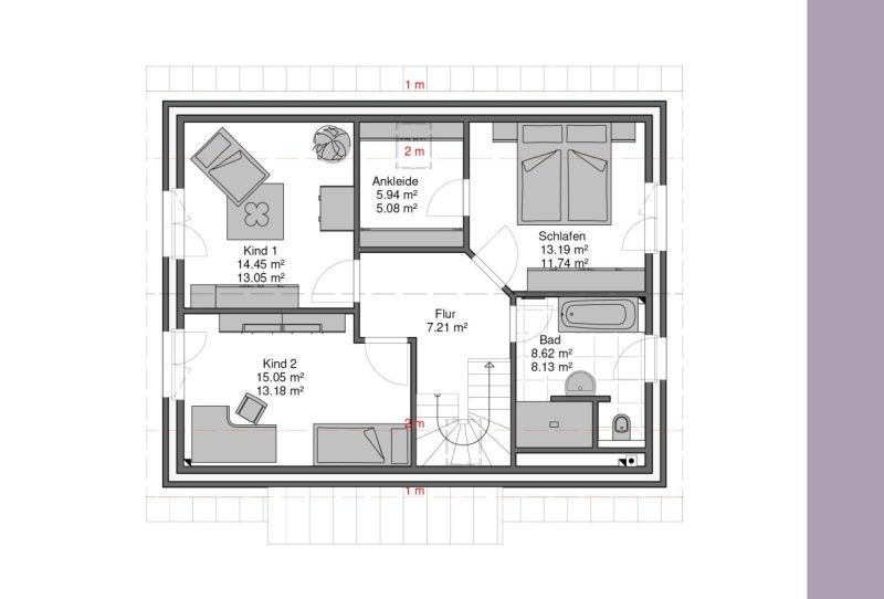
Grundriss Dachgeschoss

Kind 1: 13,05 qm

Kind 2: 13,18 qm

Schlafen: 11,74 qm

Ankleide: 5,08 qm

Bad: 8,13 qm

Flur: 7,21 qm

Wohnfläche: 58,39 qm

FAM 140

Einfamilienhaus als Landhaus

Landhaus mit 138 qm

  • Wohnfläche: ca. 138 qm
  • Außenmaße: 8,49 x 11,24 m
  • Dachneigung: 48°
  • Kniestock: 75 cm

Alles inklusive:

  • Effizienzhaus
  • Modernste Heiztechnik
  • Kontrollierte Be- und Entlüftung
  • Fußbodenheizung
  • 3-fach Wärmeschutzverglasung
  • Hoch gedämmte energetische Gebäudehülle in Massivbauweise
  • Niedriger Energieverbrauch
  • Gesundes Raumklima

Grundriss Erdgeschoss

Wohnen/Essen: 34,46 qm

Küche: 10,01 qm

Gast: 11,41 qm

WC/DU: 3,03 qm

Speisekammer: 0,59 qm

Diele: 8,31 qm

Garderobe: 2,31 qm

Wohnfläche: 77,61 qm

Grundriss Dachgeschoss

Kind 1: 10,33 qm

Kind 2: 10,31 qm

Kind 3: 11,28 qm

Schlafen: 12,21 qm

Bad: 6,83 qm

Flur: 9,49 qm

Wohnfläche: 60,45 qm

FAM 149

Einfamilienhaus als Landhaus

Einfamilienhaus

  • Wohnfläche: ca. 149 qm
  • Außenmaße: 9,49 x 10,74 m
  • Dachneigung: 47°
  • Kniestock: 75 cm

Alles inklusive:

  • Effizienzhaus
  • Modernste Heiztechnik
  • Kontrollierte Be- und Entlüftung
  • Fußbodenheizung
  • 3-fach Wärmeschutzverglasung
  • Hoch gedämmte energetische Gebäudehülle in Massivbauweise
  • Niedriger Energieverbrauch
  • Gesundes Raumklima

Grundriss Erdgeschoss

Wohnen/Essen: 39,92 qm
Küche: 13,51 qm
Garderobe: 1,99 qm
WC: 1,99 qm
HWR: 13,15 qm
Diele: 9,34 qm
SPK: 1,88 qm

Wohnfläche: 81,78 qm

Grundriss Dachgeschoss

Kind 1: 11,47 qm
Kind 2: 11,46 qm
Büro: 12,22 qm
Schlafen: 12,78 qm
Ankleide: 6,48 qm
Bad: 12,29 qm

Wohnfläche: 66,70 qm

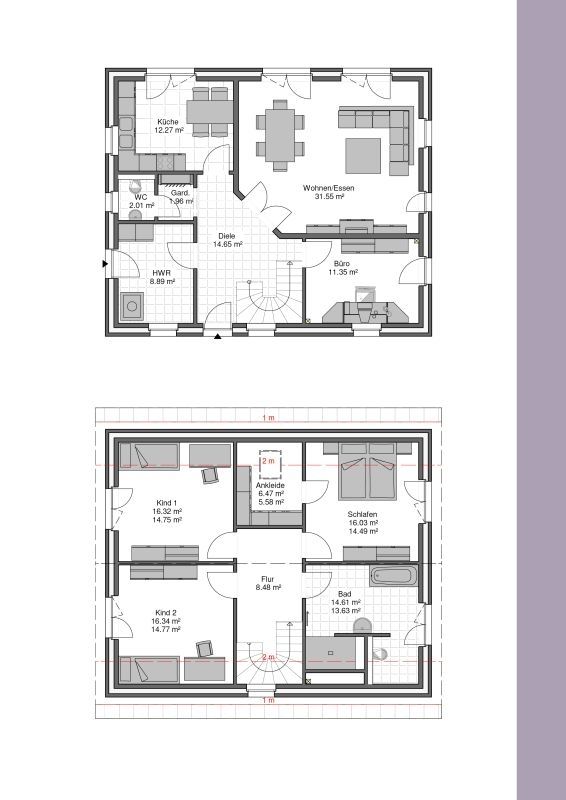
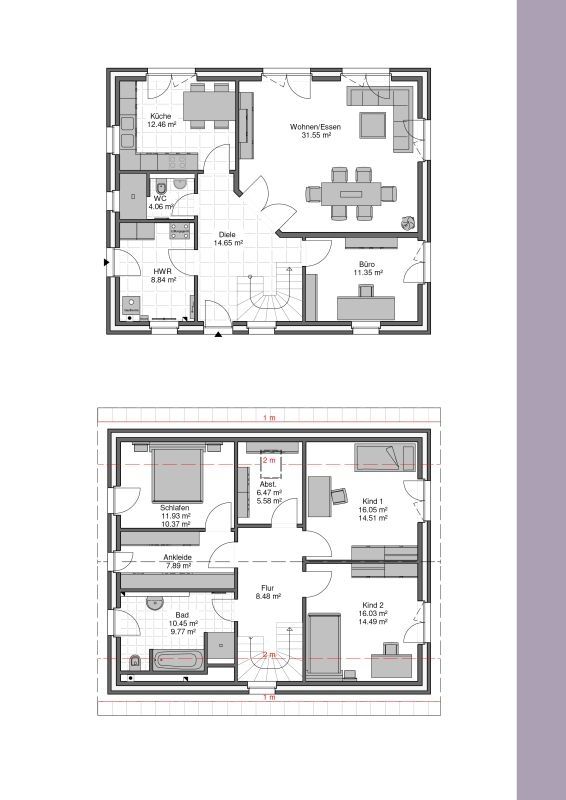
FAM 153

Einfamilienhaus als Landhaus

Einfamilienhaus

  • Wohnfläche: ca. 155 qm
  • Außenmaße: 9,24 x 11,24 m
  • Dachneigung: 34°
  • Kniestock: 150 cm

Alles inklusive:

  • Effizienzhaus
  • Modernste Heiztechnik
  • Kontrollierte Be- und Entlüftung
  • Fußbodenheizung
  • 3-fach Wärmeschutzverglasung
  • Hoch gedämmte energetische Gebäudehülle in Massivbauweise
  • Niedriger Energieverbrauch
  • Gesundes Raumklima

Grundriss Erdgeschoss

Wohnen/Essen: 31,55 qm
Küche: 12,81 qm
HWR: 8,89 qm
WC: 4,06 qm
Büro: 11,35 qm
Diele: 14,65 qm

Wohnfläche: 83,35 qm

Alternative Grundrisse

Version 1

Grundriss Dachgeschoss

Kind 1: 14,75 qm
Kind 2: 14,75 qm
WC/Du: 5,35 qm
Schlafen: 10,19 qm
Ankleide: 8,32 qm
Bad:  8,79 qm
Flur: 8,48 qm

Wohnfläche: 70,63 qm

Alternative Grundrisse

Version 2

FAM 154

Einfamilienhaus als Landhaus

Einfamilienhaus

  • Wohnfläche: ca. 154 qm
  • Außenmaße: 8,74 x 11,49 m
  • Dachneigung: 48°
  • Kniestock: 75 cm

Alles inklusive:

  • Effizienzhaus
  • Modernste Heiztechnik
  • Kontrollierte Be- und Entlüftung
  • Fußbodenheizung
  • 3-fach Wärmeschutzverglasung
  • Hoch gedämmte energetische Gebäudehülle in Massivbauweise
  • Niedriger Energieverbrauch
  • Gesundes Raumklima

Grundriss Erdgeschoss

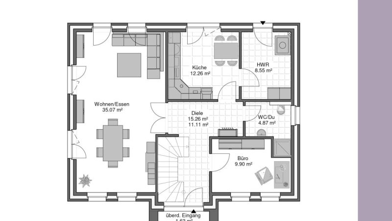
Wohnen: 34,42 qm
Küche: 10,84 qm
Gast: 12,16 qm
HWR: 8,95 qm
WC: 1,92 qm
Diele: 14,04 qm
überd. Eingang: 0,96 qm

Wohnfläche: 83,33 qm

Alternativer Grundriss

Erdgeschoss

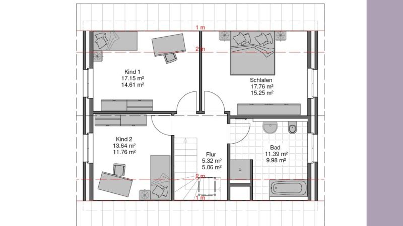
Grundriss Dachgeschoss

Kind 1: 13,75 qm
Kind 2: 13,73 qm
Büro: 10,54 qm
Schlafen: 14,71 qm
Bad:  10,28 qm
Flur: 7,97 qm

Wohnfläche: 70,98 qm


Alternativer Grundriss

Dachgeschoss

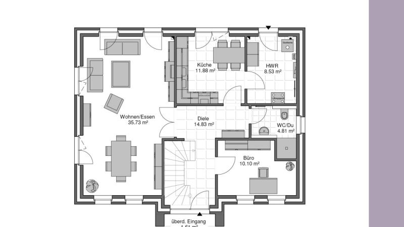
FAM 162

Einfamilienhaus als Landhaus

Einfamilienhaus

Wohnfläche: ca. 162 qm
Außenmaße: 8,99 x 11,74 m
Dachneigung: 48°
Kniestock: 75 cm

Alles inklusive:

  • Effizienzhaus
  • Modernste Heiztechnik
  • Kontrollierte Be- und Entlüftung
  • Fußbodenheizung
  • 3-fach Wärmeschutzverglasung
  • Hoch gedämmte energetische Gebäudehülle in Massivbauweise
  • Niedriger Energieverbrauch
  • Gesundes Raumklima

Grundriss Erdgeschoss

Wohnen/Essen: 35,73 qm
Küche: 11,88 qm
HWR: 8,53 qm
WC/DU: 4,81 qm
Diele: 14,83 m²
Büro: 10,10 qm
überd. Eingang: 0,81 qm

Wohnfläche: 85,85 qm

Fam 162 EG1

Alternativer Grundriss

Erdgeschoss

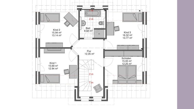
Grundriss Dachgeschoss


Kind 1: 12,94 qm
Kind 2: 13,14 qm
Kind 3: 13,77 qm
Schlafen: 12,25 qm
Bad:  8,02 qm
Flur: 12,35 qm

Wohnfläche: 72,47 qm

Alternativer Grundriss

Dachgeschoss